Overview
3 Bedroom End of Terrace House for rent in Flatford Place, Kidlington
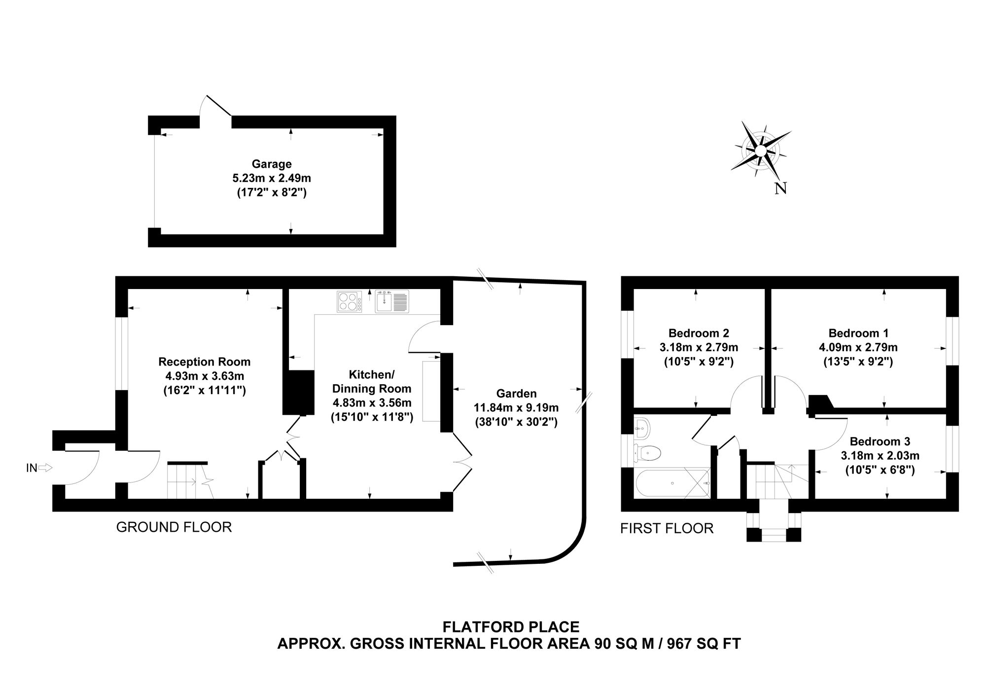
Stunning three bedroom family home to rent located on Flatford Place, Kidlington. The property comprises, an entrance hallway leading to the reception room, modern open fitted kitchen with high quality integrated appliances, and doors leading out to the garden. Upstairs, there are two double bedrooms, third single bedroom / dressing room, and bathroom with shower over the bath. The property also includes a garage with driveway which has a carport installed for undercover parking as well as an EV point.
This property is ideal for a family or two sharers and is available from 7th April 2026.
EPC Rating: C
Council tax band D
Holding deposit: 1 weeks rent
Damages...
Read more
Stunning three bedroom family home to rent located on Flatford Place, Kidlington. The property comprises, an entrance hallway leading to the reception room, modern open fitted kitchen with high quality integrated appliances, and doors leading out to the garden. Upstairs, there are two double bedrooms, third single bedroom / dressing room, and bathroom with shower over the bath. The property also includes a garage with driveway which has a carport installed for undercover parking as well as an EV point.
This property is ideal for a family or two sharers and is available from 7th April 2026.
EPC Rating: C
Council tax band D
Holding deposit: 1 weeks rent
Damages deposit: 5 weeks rent
Contact Alistair Redhouse lettings team to arrange an accompanied viewing.
Permitted tenant costs are as follows:
A holding deposit, a damages deposit, rent payments, utility costs, council tax, and any other associated services. Early termination fee of £200.00 inc VAT (minimum) to be confirmed at the landlords discretion. Late rent payment fee of 3% above Bank of England base rate. Lost keys £4 (minimum) to be confirmed at the landlords discretion. Company let fee £360 inc VAT (minimum).
AR Property Partners is part of the Client Money Protection Scheme Safe Agent Ref No A4609. AR Property Partners is part of the Redress Scheme The Property Ombudsman.
Read less
Important Information
- This Council Tax band for this property is: D
- EPC Rating is C
Key Info
- Three bedroom end of terrace home
- New fitted kitchen
- Living room
- Kitchen doors leading to garden patio
- Bathroom with shower over bath
- Garage and driveway parking
- EV point for vehicle charging
- Alternative to deposit available